Helenedalsvägen 16G
- 1 950 000 kr
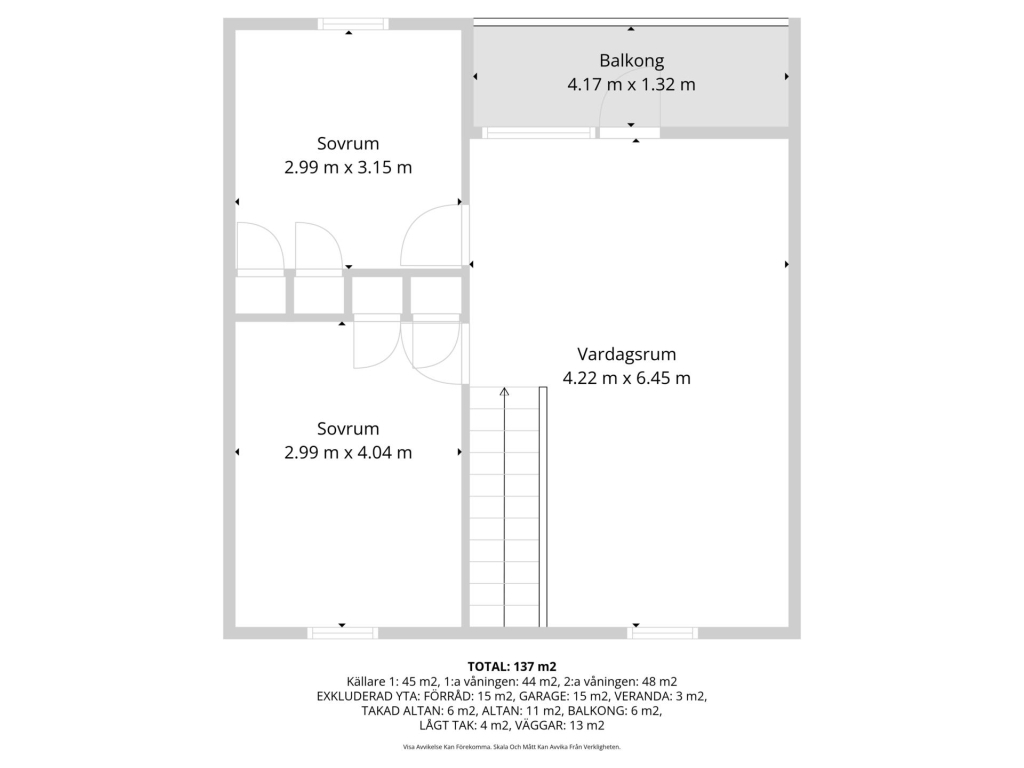
- 4 rum
- 89 + 45 kvm
Välkommen till detta trivsamma radhus beläget i ett lugnt och barnvänligt område med närhet till allt som underlättar vardagen. Här bor du med gångavstånd till skola och förskola, goda kommunikationer som smidigt tar dig till centrum samt fina grönområden för lek, promenader och avkoppling.
Bostaden erbjuder en välplanerad planlösning med 2–3 sovrum, ett ljust allrum samt ett funktionellt kök med plats för matgrupp. I källarplanet finns bland annat en rymlig gillestuga som passar utmärkt som extra sällskapsyta, hobbyrum eller hemmakontor.
Huset har en något äldre standard, vilket ger dig möjlighet att sätta din egen prägel och skapa ett hem helt efter egen smak. Förvaringsmöjligheterna är goda med både klädkammare, matkällare och platsbyggda garderober. Praktiskt garage finns direkt i huskroppen – bekvämt året om.
Ett hem som passar perfekt för barnfamiljen eller för dig som söker ett lugnt boende med närhet till stadens utbud och naturens lugn.
Invändiga bilder publiceras inom kort. Kontakta mäklare för mer info.
FAKTA
- Antal rum 4 rum
- Objekttyp Lägenhet
- Upplåtelseform Bostadsrätt
- Adress Helenedalsvägen 16G, 451 54 Uddevalla
- Förening Brf Mården 1
- Boarea / biarea 89 kvm / 45 kvm
- Areakälla Areauppgifter enligt bostadsrättsföreningen
- Bostadsrättens indirekta nettoskuldsättning 179 714 kr
-
Kommentar till nettoskuldsättningen
Den indirekta nettoskuldsättningen beräknas efter den senast tillgängliga årsredovisningen från föreningen.
Den indirekta nettoskuldsättningen anger hur stor del av bostadsrättsföreningens räntebärande skulder som indirekt belastar bostadsrätten.
Balkong & Uteplats
Byggnad
Våning/hiss
Energideklaration
Fakta om föreningen
Under det gångna året har taken lagts om.
För mer information se årsredovisning och hemsidan https://brfmarden1.bostadsratterna.se.
Styrelsen skriver också regelbundet medlemsbrev med information om vad som händer i föreningen, om vår ekonomi, kallelser till städdagar vår och höst och annat som du som medlem behöver veta.
Besiktning:
Yttre besiktning gör styrelsen en gång om året och då får Du ett protokoll över vad som måste åtgärdas.
Bygga om och renovera:
Större förändringar både inom- och utomhus ska anmälas till styrelsen och godkännas innan arbetet påbörjas. Det gäller framför allt arbeten som berör kök, ventilation, vatten och avlopp samt bärande väggar. En särskild blankett finns. Läs mer om detta på hemsidan under fliken Bygga och renovera
Medlemsbrev:
Medlemsbrev delas ut i brevlådan och innehåller information du som medlem bör veta. Det går även att läsa dem på hemsidan under fliken Medlemsbrev.
Månadsavgift:
Betalningsavier delas ut i brevlådan. Betalar du via internet var noga med att ange namn, adress och vilken månad hyran avser.
Skötselgrupp:
I vår förening har vi valt att hålla hyran så låg som möjligt genom att delvis vara våra egna fastighetsskötare. Alla medlemmar ingår i var sin skötselgrupp och vi hjälps åt på gemensamma städdagar.
Snöskottning:
Snöskottning sköter var och en på sin bit av trottoaren. Läs även i skötselanvisningarna under fliken Snöskottning vem som ansvarar för snöskottning på gemensamma ytor.
Sopor:
Sopkärlen står på asfaltplanen mellan Vesslevägen och Blekevägen. Tidningar, kartong, glas, plåt mm ska återvinnas och lämnas vid återvinningsstationen på Helenedalsvägen. Grovsopor får du köra själv till återvinningscentralen Havskuren. Det finns också kärl för trädgårdsavfall. Se Sophantering.
Stadgar:
Läs särskilt det som handlar om vad som är ditt ansvar och vad som är föreningens ansvar. Varje år i början av maj håller vi föreningsstämma där vi väljer styrelse och tillsammans beslutar om hur föreningen och fastigheten ska skötas.


















